In het vorige verslag wordt gesproken over het "stookhok" en jullie zullen wel denken : een stookhok anno 2024.
Wat gaat daar in gebeuren ?? Vroeger was het stookhok de ruimte waarin de was werd gedaan. In de jaren zestig , kan ik me nog goed herinneren , stond er een kookpot waarin de witte was werd 'gekookt', daarna ging de was in de wasmachine...nou ja wel een Miele.

In de wasmachine een schoep die het wasgoed mengde en daarna ging de was handmatig door de wringer, in een tobbe waarin het nog een keer gespoeld werd, en dan nogmaals weer door de wringer, en dan aan de waslijn. Mijn moeder had op maandag een echte wasdag.. de hele dag in het teken was de was.

Gelukkig hebben we geen echte wasdag meer, we zetten de wasmachine aan ; die doet het werk en wij gaan een boekje lezen.
Ook waren er in het stookhok de "zwienhokken" waar varkens in woonden.


Op de tekening het vooraanzicht van het huis , zoals het was tot september 2023 .
Het was onze wens om het aanzicht van de boerderij en stookhok zo veel mogelijk te behouden. Maar we wilden dat het stookhok wel een deel van de woning zou worden.

Er wordt veel gepuzzeld met papier, liniaal en potlood. Veel ideeën passeren de revue . Maar uiteindelijk komt het vooraanzicht er zo uit te zien, verbinding met plat dak en het vooraanzicht met zwart rabat met een raam erin.
En gelukkig de welstandscommissie vond het mooi!!
En kunnen we beginnen met de sloop.
En hoe wordt de ruimte in het stookhok straks gebruikt???

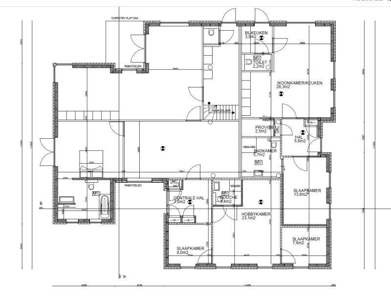
Ziehier de tekening zoals het gaat worden:
Het voorste deel wordt de badkamer, wordt dus weer gewassen...
Het middenste deel wordt de slaapkamer...
In het achterste deel komt het aanrecht: de keuken.

hierboven de tekening van het totaal, de verbouwing gaat in fases, het 'stookhok' wordt eerst afgebouwd. Ik besef nu ik dit schrijf dat we de ruimte nog steeds het stookhok noemen.
In de volgende blog verslag van het opnieuw optreden van het B-ton team.
Reactie plaatsen
Reacties
Heb het nu met eigen ogen gezien!!
Oeee binnenkort maar even in het echt bekijken!